厦工XG6141压路机凭借大功率发动机、重型压路轮及多优设计,展现出卓越的压实性能和稳定性,操作简便、舒适度高,维护便捷,广泛适用于各类工程压实场景。

厦工XG612H压路机通过强劲动力系统与精密配重设计,实现高效稳定压实作业,其先进的电控配置和人性化操作界面显著提升施工效率,同时具备出色的舒适性与维护便利性,是复杂工况下的可靠工程装备。

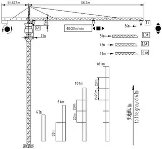
徐工XCT85全桥转向起重机凭借85吨起重量和68米起升高度,结合智能节油系统与模块化结构设计,在建筑与工业领域展现出卓越的灵活性、稳定性及能源效率,成为多功能作业场景的优选装备。

国四装载机凭借高功率输出、人性化设计及适配复杂地形能力,实现作业效率提升和环保标准达标,成为工程场景的高效可靠选择。

